10
Total Mentions
10
Documents
3
Connected Entities
Person referenced in documents
EFTA00727968
ng. Glass may be curved, but not a round ml05.7112.0001Joituitentatuall_greeraMmn,eam 1010.blJeaggiommdinancetbsx MN IC 2500 Broadway Suite 300 Sawa Monica California 90404 Tel: 310.449.5600 Fax: 310.449.5850 EFTA00727969 Meeting Notes continued Gensler Pi0/004 Little St. James Island Project Nu
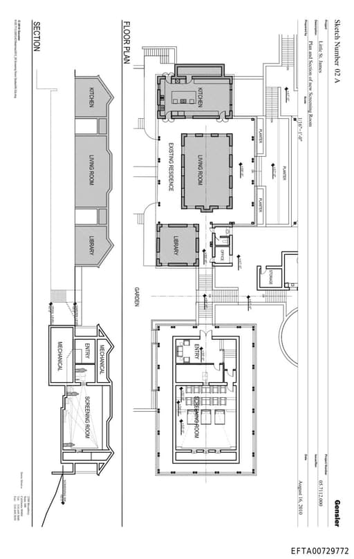
EFTA00729772
fl E vs - C.-1 a i -- * ENTRY SMEENING ROOM rE a o_r4+,4i, a • IBS OS August 16, 2010 ENTRY li •1.t MECHANICAL SECTION SCREENING ROOM Sawa Monica 2010 Gensler MO 7112 002•En0Sieroxin201000 Sowing Rc0rnSIWIGSISK-024 (MS 2500 Broadway Suite 300 Catania 90404 TM 310.449.5600 Fax: 310.449-58
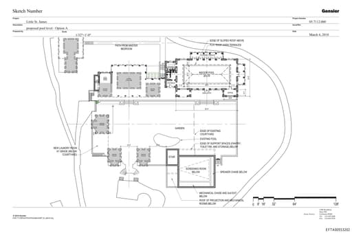
EFTA00553202
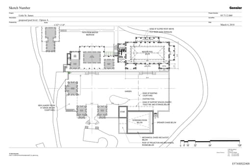
-4 ...- - \ V, _J SPEAKER CHASE BELOW MECHANICAL CHASE AND 2nd EXIT BELOW ROOF OF PROJECTION AND CH ROOMS BELOW o 8' 16' 32' 64' 128' Sawa Monica 2500 Broadevy Suite 300 California StD104 Tel: 310.449.5600 Fax: 310.449-5850 EFTA00553202
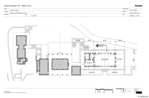
EFTA00607954
11 ON EL. 38' MAIN LEVEL — EL: 59'-0" CO 2011 Genelee Itx357II2020DODSwereadOt L0131 Menem Dulettpum 07 ran deg 0 5' 10' 20' 40' Ref. No Sawa Monica 2500 Broadway Suite 300 California 90404 "rd: Fax: EFTA00607954
EFTA00621944
L: 34'-7" LANDING MAIN RESIDENCE EL. 59'-0" Project Number les uoretev Date 05.7112.000 Issue for Review December 9, 2010 0 4' 8' 16' 321 Sawa Monica dP 2010 Gensler N535 7112 060DADDretars6010: 2 Mauer Poems, Das1SIC-Ola deg 2500 Broadway Seise 300 Catania 90404 Td: 310.449.5600 Fax: 310.4
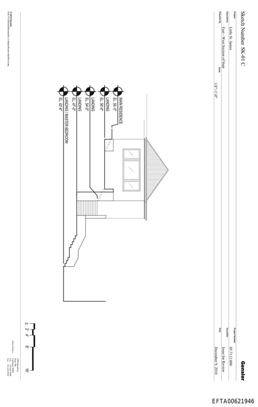
EFTA00621946
AIN RESIDENCE EL. 59.-0" V. LANDING EL. 561-6" LANDING EL. 541-0" LANDING EL. 4T-0" 0 LANDING / MASTER BEDROOM EL. 42'-6" 0 2' 4' 8' 16' Sawa Monica 2010 Gensler 6005 7I12 OO 4OSre,.n¢sv010,.'2 Mauer Wrier PanSC0lc0n9 2500 Broadway Suite 300 Ca/ifornia 90404 Tel: 310.449.5600 Fax: 310.44958
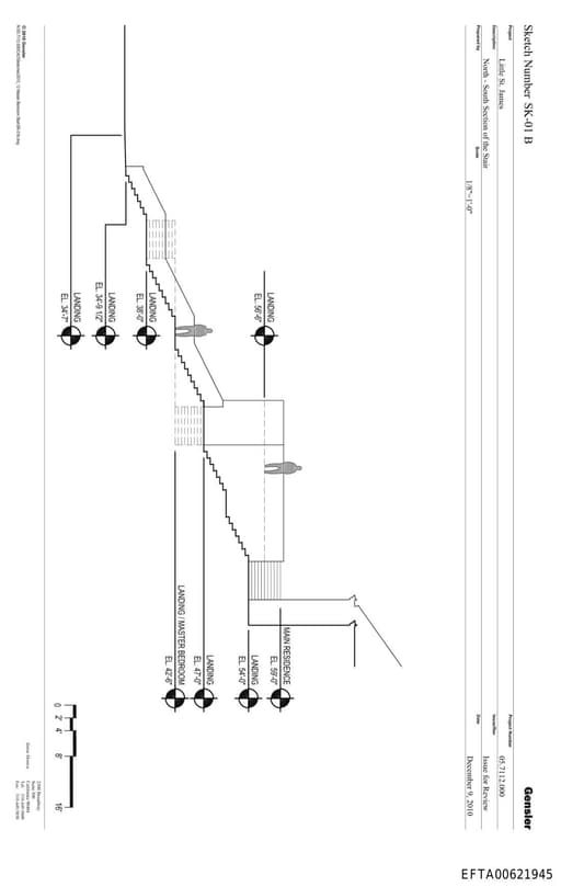
EFTA00621945
LANDING / MASTER BEDROOM MAIN RESIDENCE EL. 59'-0" LANDING EL. 54'-0" LANDING EL. 4T-0" EL. 42'-6" Date December 9, 2010 0 2' 4' 8' 16' Sawa Monica a 2010 Gensler tri057,12020C*Sretars2010:2 Dawn Stari$1401bdis 2300 Broadway Suite 300 Catifomia 90404 310.449.5600 Few 310.4495050 EFTA0062
EFTA00622150
11 Genelae KISS 7112 0:1004090throdOt 1Ot 18 Saerlearker G$ .root *As 0 5' 10' 20' 40' Ref. No 05.7112.000 Issue for Review January 21, 2011 Sawa Monica 2500 Broadway Suite 300 California 90404 Td: 310.449.5600 Fax: 310.449-5850 EFTA00622150
EFTA00622151
EZZANINE EL. 46-0" POOL LEVEL $_ EL. 36-0" a 2011 Gensler 1005 7112 000041nlableserrb 101 le 9,..res303,- -Scclo,Ard 8 Cre; 0 4' 8' 16' 32' Sawa Monica 3300 Itreathcay Suite 300 California 90004 310.449.5600 Fax: 310.4495850 EFTA00622151
EFTA00522409
-4 ...- - \ V, _J SPEAKER CHASE BELOW MECHANICAL CHASE AND 2nd EXIT BELOW ROOF OF PROJECTION AND CH ROOMS BELOW o 8' 16' 32' 64' 128' Sawa Monica 2500 Broadevy Suite 300 California StD104 Tel: 310.449.5600 Fax: 310.449-5850 EFTA00522409