644
Total Mentions
632
Documents
1,676
Connected Entities
NER artifact: Gensler is an architecture/design firm, not a person
Gensler is the world's largest architecture firm, which was contracted by Jeffrey Epstein to design multiple structures on his private Little St. James Island, including a subterranean screening room, main residence renovations, swimming pool area, dock house, and spa concept.
The vast majority of Gensler's 644 mentions relate to the firm's architectural work on Epstein's Little St. James Island between 2007 and 2011. Documents include design development packages, invoices, construction drawings, and direct email correspondence between Gensler principal Warwick Wicksman and Epstein's staff. The firm's Santa Monica office address (2500 Broadway, Suite 300) appears on architectural drawings and letterheads throughout the files. A small number of mentions reference SEC Chair Gary Gensler in automated news roundup emails, which are unrelated to the architecture firm.

Perversion of Justice: The Jeffrey Epstein Story
Julie K. Brown
Investigative journalism that broke the Epstein case open

Filthy Rich: The Jeffrey Epstein Story
James Patterson
Bestselling account of Epstein's crimes and network

Relentless Pursuit: My Fight for the Victims of Jeffrey Epstein
Bradley J. Edwards
Victims' attorney's firsthand account
EFTA02436187
009 8:20:41 PM Subject: FW: Gensler Invoice SD Consultant June invoice revised.pdf DD June invoice revised.pdf Gary has reviewed the attached two Gensler invoices totaling $105,500 and recommends payment. They are broken up between architectural (covering pool area, atv garage & dock house) $65,000 an
To: Jeffrey [email protected]] From: Rich Kahn Sent: Thur 8/27/2009 8:20:41 PM Subject: FW: Gensler Invoice SD Consultant June invoice revised.pdf DD June invoice revised.pdf Gary has reviewed the attached two Gensler invoices totaling $105,500 a
EFTA00738886
2010, Doug Schoettle sent you the email below which defined a new June 2010 scope of work with regard to the architectural and design services that Gensler will provide for Little St. James Island moving forward. Based on our telephone conversation on June 14, 2010, I understand that you will be revisin
ith Doug and Mr. Epstein on the Island next week. Please sign and return with the retainer ASAP. Thanks, Warwick Warwick Wicksman, AIA Principal Gensler 2500 Broadway Suite 300 Santa Monica, California 90404 USA From: Darren Indyke [mailto: Sent: Wednesday, June 16, 2010 10:29 AM To: Warwick Wi
EFTA01816014
To: Rich Kahn From: Jeffrey Epstein Sent Thur 8/27/2009 11:37:53 PM Subject: Re: FW: Gensler Invoice do not pay for atv garage„ .. or dock house otherwise pay,,, they can't charge money for something that they had a responsiblity , to see i
ool area, atv garage & dock house) $65,000 and consultants (covering pool area, atv garage & existing main residence) $40,500. To date we have paid Gensler $133,875. Do I have your approval to pay? Rich Kahn HBRK Associates Inc. PO Box 400 New York, NY 10150 t el fax cell From: Rich Kahn Sent: M
EFTA02435378
terials and subs have been contracted outstanding issues holding up construction. If we get decisions Fri. we can make May. 1.collums, hope to have Gensler's new drawings by Fri. 2.tub,will go over Doug's spec's and get direction. 3.interiors,we need to make decisions on the materials that the decorato
with Gensler to pull the permit for the main house, which will permit the phase one work. While we are doing the physical work on the improvements Gensler will make all the changes and finish the construction drawings for the main house. Doug is going to L.A.and meet with Gensler the week after Thanksg
EFTA00616309
ber - gption B Upper level Mark-ups Gensler Project Little St. James GescrIplion Prepared by Main Residence Level - Option A ffieN DN O 2Ot0 Gensler ososnia 00)CADSOndes0010:2 ltirg Rxm And PQM:Iv:onA .uxer Ctg 1/16"=F-0" DN GARDEN EL: 561-6" LANDING EL: 461-6" DN EL. 59' GARDEN ID' VERAN
Sketch Number - gption B Upper level Mark-ups Gensler Project Little St. James GescrIplion Prepared by Main Residence Level - Option A ffieN DN O 2Ot0 Gensler ososnia 00)CADSOndes0010:2 ltirg Rx
EFTA00727160
ual plan and 3D massing diagram for Screening Room and Living Room, based on Client's new design direction. (Once conceptual diagrams arc approved, Gensler will provide separate proposal to create new Permit/Construction Documents, include required Consultants.) Description: Screening Room: Convert Ex
Work Authorization Number 002 Gensler Data Little St. James Pool Area and Screening Room 8/18/10 ►reject Legation Protect Nut Little St. James Island, USVI 05.7112.000 Client Fil
EFTA00749024
e additional structural engineering. I attached each invoice again for reference. EFTA00749024 Thanks, Warwick Warwick Wicksman, AIA Principal Gensler 2500 Broadway Suite 300 Santa Monica, California 90404 USA Click here to view Gensler's 2010 Annual Report. From: Rich Kahn [mailto: Sent: Thu
ject: FW: pool Date: Wed, 24 Nov 2010 14:14:17 +0000 Attachments: 250003.pdf; 273470.pdf; 273472.pdf Jeffrey The attached invoice for $8,940 from Gensler is for structual consulent fees for the original plan we were preparing to submit a year ago.The work was done and the invoice should be paid before
EFTA00679541
Sketch Number G5 - roof plan Gensler Project Description Prepared by Projett Nutter Little St. James 05.7112.000 Roof Plan Scale T-] rb 1"=201-0" et 201 t Gensler tvos7wwwsv
roof plan Gensler Project Description Prepared by Projett Nutter Little St. James 05.7112.000 Roof Plan Scale T-] rb 1"=201-0" et 201 t Gensler tvos7wwwsvmheowl_mm%gftaloimaccown • \ • N • • • • -....... • • • • • • • • • • • • \ • • • • • • @@ /\. S. • • • •
EFTA01981821
bursable expenses, and the additional structural engineering. I attached each invoice again for reference. Thanks. Warwick Warwick Wicksman, AIA Gensler 2500 Broadway Suite 300 Santa Monica, California 90404 USA Click here to view Gensler's 2010 Annual Report From: Rich Kahn lmailto: Sent: Thur
24/2010 2:18:35 PM Subject: Re: FW: pool ok On Wed, Nov 24, 2010 at 10:14 AM, Gary Kerney C wrote: Jeffrey The attached invoice for $8,940 from Gensler is for structual consulent fees for the original plan we were preparing to submit a year ago.The work was done and the invoice should be paid before
EFTA02412984
bursable expenses, and the additional structural engineering. I attached each invoice again for reference. Thanks, Warwick Warwick Wicksman, AIA Gensler 2500 Broadway Suite 300 Santa Monica, California 90404 USA Click here to view Gensler'S 2010 Annual Report. From: Rich Kahn [mailto Sent: Thur
Gary Kerney Sent: Wed 11/24/2010 2:14:17 PM Subject: FW: pool 250003.pdf 273470.pdf 273472.pdf Jeffrey The attached invoice for $8.940 from Gensler is for structual consulent fees for the original plan we were preparing to submit a year ago.The work was done and the invoice should be paid before
EFTA01819863
terials and subs have been contracted outstanding issues holding up construction. If we get decisions Fri. we can make May. 1.collums, hope to have Gensler's new drawings by Fri. 2.tub,will go over Doug's spec's and get direction. 3.interiors,we need to make decisions on the materials that the decorato
with Gensler to pull the permit for the main house, which will permit the phase one work. While we are doing the physical work on the improvements Gensler will make all the changes and finish the construction drawings for the main house. Doug is going to L.A.and meet with Gensler the week after Thanksg
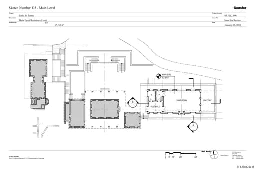
EFTA00622149
Sketch Number G5 - Main Level Gensler Project Little St. James Description Main Level/Residence Level Prepared by Stale Project Number issuefFter Date 05.7112.000 Issue for Rev
Stale Project Number issuefFter Date 05.7112.000 Issue for Review 1"=201-0" January 21, 2011 r JI LIN Cri 11 DN MAIN LEVEL 11 41)2011 Gensler tra357112000PPOSter-M00110113Sker.u:SOpar G5 .rnamibi9 Oa SO EL: 5g-0" 0 5' 10' 20' 40' Ref. Medea Sarno Moats 2500 Broadway Suite 300 Cal
EFTA00561100
u think we can have him for? Do you think he would like me to have some sandwiches brought in for lunch? Warwick Warwick Wicksman, AIA Principal Gensler 2500 Broadway Suite 300 Santa Monica, California 90404 USA http://www.Genslencom Click here to view Gensler's 2010 Annual Report. From: Sarah
EFTA00561102
From: Sarah K To: Jeffrey Epstein <[email protected]> Date: Thu, 03 Mar 2011 18:44:51 +0000 Reminder, ME, barrys friend is meeting you at Gensler at 12pm EFTA00561102
EFTA00259369
9 80% Design Development Progress Package -Revised 3d views -Schematic Landscape plant selection & planting plan -Revised Screening Room finishes Gensler 2500 Broadway suite 300 Santa Monica, CA 90405 310.449.5785 EFTA00259369 06/04/2009 80% DD Progress Package, Consultant's SD Package EFTA00259
EFTA00436374
you. Warwick Warwick Wicksman, AIA Principal Gensler Suite 300 Santa Monica, California 90404 USA http://www.Gensler.com Click here to view Gensler's 2010 Annual Report. Original Message From: [mailto: Sent: Monday, March 28, 2011 8:28 AM To: Warwick Wicksman Subject: Re: Jeffrey Epstein
EFTA00436375
nd the meeting request this morning, adding to the list. I will send another one adding you. > Warwick > • Warwick Wicksman, AIA > Principal > Gensler > Suite 300 > Santa Monica, California 90404 > USA > http://www.Gensler.com > Click here to view Gensler's 2010 Annual Report. • Original Mess
EFTA00259204
lOICAPIL CIONCOMMIIIO aft IRV 000L04.01 MOC•111000 0 curios nova awn SHEET NOTES Little St. James Saoming Room Pool Cabana< Guest Pavilions Gensler toe 1•1 leei•••• COSY 1,•••• to P• I a is Iwo • mi••••• • OPP roars NOT FOR CONSTRUCTION alt APO revere SOUND .au. AN GARAGE in••••••
EFTA01303878
Little St. James Island Cabanas, Pavilions, Pool & Screening Room 06/04/2009 80% Design Development Progress Package -Revised 3d views Gensler -Schematic Landscape plant selection & planting plan 2500 Broadway suite 300 -Revised Screening Room finishes Santa Monica, CA 90405 SDNY GM 001
EFTA00435407
! On Apr 14, 2011, at 10:20 AM, Warwick Wicksman wrote: Ok. I will revise the meeting request. Thanks. Warwick Warwick Wicksman, AIA Principal Gensler Click here to view Gensler's 2010 Annual Report. From: [mailto: Sent: Thursday, April 14, 2011 6:52 AM To: Warwick Wicksman Cc: Jeffrey Epstein

Jeffrey Epstein
PersonAmerican sex offender and financier (1953–2019)

Santa Monica
LocationBeachfront city in Los Angeles County, California, United States
Warwick Wicksman
PersonPerson referenced in documents
Warwick
LocationCounty town of Warwickshire, England
Gary Kerney
PersonEpstein associate listed in his black book and on flight manifests
Tom Sze
PersonPerson referenced in documents
Doug Schoettle
PersonAmerican architect listed in Epstein's contact book, involved in property renovations
Chris Dilorio
PersonIndividual referenced in Epstein documents

Supreme Court
OrganizationHighest court of jurisdiction in the US

Donald Trump
PersonPresident of the United States (2017–2021, 2025–present)

Michael Milken
PersonAmerican investor

Wilbur Ross
PersonUnited States 39th Secretary of Commerce

Samantha Power
PersonIrish-American academic, author and diplomat

Richard Kahn
PersonJeffrey Epstein's accountant and estate co-executor (2005-present)

Marc Rich
PersonAmerican commodities trader (1934–2013)

Clayton
LocationCity in and county seat of St. Louis County, Missouri, United States

Credit Suisse
OrganizationSwiss multinational banking institution

Jared Kushner
PersonAmerican businessman and real estate investor (born 1981)
Charts
OrganizationOrganization referenced in documents
Greensill
PersonReferences to Greensill Capital financial scandal in news coverage within Epstein-related DOJ documents