6
Total Mentions
6
Documents
2
Connected Entities
Organization referenced in documents
EFTA00805777
zation(s) the power to regularly appoint or elect a majority of the directors or trustees of the supporting organization. You must complete Part IV, Sections A and B. b El Type II. A supporting organization supervised or controlled in connection with its supported organization(S), by having control or man
EFTA00622151
Sketch Number SK- Option G5, Sections A and B Gensler Project Little St. James Project Number 05.7112.000 Descdplion wuomov Issue for Review Prepared by Scale 1/16"—I'-0" SECTIO
EFTA00679542
Sketch Number SK- Option G5, Sections A and B Gensler Project Little St. James ProlKt lbanber 05.7112.000 Dosed.don Issue/Flee Issue for Review Preparedly SECTION A stele 1/16"=
EFTA01384722
Section B. If the Investor has not made the election above, and the Investor is an entity, the Investor must initial the appropriate Items below in Sections A and/or B, as applicable. A. Exempt Persons (Entities only; individual investors please skip to Section B below): (Initial as Appropriate) The Inv
EFTA02686205
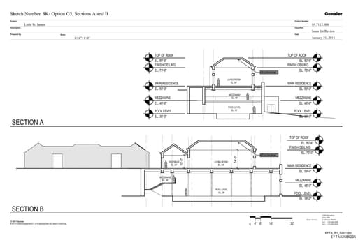
Sketch Number SK- Option G5, Sections A and B Gensler Project Littic St. James DewIptloa PT69arad by SECTION A Scala 1/16"-F-0" TOP OF ROOF FINISH CEILINI EL. 7T-0" MAIN RESIDEN
EFTA02377015
Sketch Number SK- Option G5, Sections A and B Gensler Project Littic St. James Dourlotion PreWed by SECTION A Scale 1/16"-F-0" TOP OF ROOF FINISH CEILINI EL. 7T-0" MAIN RESIDENC