3
Total Mentions
3
Documents
11
Connected Entities
Organization referenced in documents
EFTA00804948
e Valid Trough Prolect t0 8523415 Saks Rep Bnan Buck Page 1 of 2 City TBD Canty TBD State ZZ Zip T8D Country US virgin Islands Code IBC 2009 Snow Grid 0 Seismic Ss Shell Enclosed Occupancy Normal Wind Load 145 MPH Snow Root 0 Seismic SI Column Tapered Thermal Unheated Exposure
EFTA00602832
Street TBD City TBD State ZZ Zip TBD Country US Virgin Islands Project Building 1 Location Street TBD Engineering Width 41%4" Code IBC 2009 Length 61%4" Wind Load 145 MPH Height 18'4720.4 Exposure C 3164' Root Pitch .5:12 Live Load 20 Reducible Yes Left Endwall Spacing 2 @ 20'
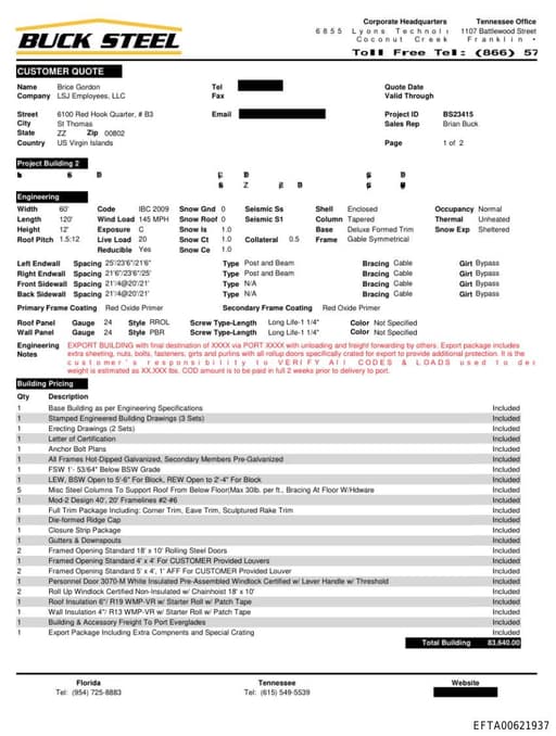
EFTA00621937
rian Buck State ZZ Zip 00802 Country US Virgin Islands Page I of 2 Project Building 2 b 6 6 B z a B I Engineering Width 60' Code IBC 2009 Snow Gnd 0 Seismic Ss Shell Enclosed Occupancy Normal Length 120' Wind Load 145 MPH Snow Root 0 Seismic S1 Column Tapered Thermal Unheat
BSW Grade
OrganizationOrganization referenced in documents
Ridge Cap
PersonName reference in documents
Brian Buck
PersonPerson referenced in documents
Project ID
OrganizationOrganization referenced in documents
Engineering Specifications
OrganizationOrganization referenced in documents
Building & Accessory
OrganizationOrganization referenced in documents
Snow Gnd
PersonName reference in documents
Buck Steel
OrganizationOrganization referenced in documents
Eave Trim
PersonName reference in documents
Tennessee Office
OrganizationOrganization referenced in documents
Port Everglades
LocationLocation referenced in documents