15
Total Mentions
15
Documents
7
Connected Entities
Organization referenced in documents
EFTA00730710
' DIA. LEAD HOLE INTO THE RAFTER. MATCH FELT PAPER. PURUNS. INSULATION & ROOFING WITH EXISTPIG 1 PROPOSED ROOF PLAN SCALE: 114"= 61.02 THE deJ NGH GROUP. PC ARCHITECTS & PLANNERS 2260 ESTATE STAABI ST. TH011ialli KITCHEN RENOVATION LITTLE ST.JAMES U.S. VIRGIN ISLANDS PROPOSED ROOF PLAN AND NO
EFTA00730709
= _ _ WOOD EXTERIfyli RAISED PANELS 1 PROPOSED FLOOR PLAN 1 DOOR AND WINDOW SCHEDULE 41.01 SCALE: VC= I-0" Kul SCALE: 1/4"= 1.4:r THE deJ NGH GROUP. PC ARCHITECTS S PLANNERS 2200 ESTATE STAABI ST. TH011iali KITCHEN RENOVATION LITTLE ST.JAMES U.S. VIRGIN ISLANDS PROPOSED FLOOR PLAN, DOOR
EFTA00730708
_ ..r = WOOD EXTERIfyli RAISED PANELS 1 PROPOSED FLOOR PLAN 1 DOOR AND WINDOW SCHEDULE 41.01 SCALE: VC= I-0" Kul SCALE: 1/4"= 1.4:r THE deJ NGH GROUP. PC ARCHITECTS S PLANNERS 2200 ESTATE STAABI ST. TH011iali KITCHEN RENOVATION LITTLE ST.JAMES U.S. VIRGIN ISLANDS PROPOSED FLOOR PLAN, DOOR
EFTA00730712
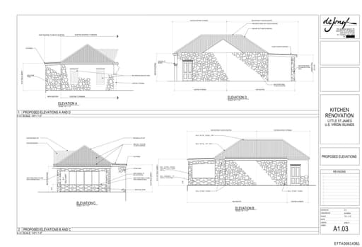
ICH tew COSTDIGTORNAis ELEVATION C CCM F W'=1'-0T ELEVATION B SCALE: 114'. PO' 2 PROPOSED ELEVATIONS B AND C min SCALE: 114"= 11-0" THE deJ NGH GROUP. PC ARCHITECTS & PLANNERS 2260 ESTATE STMBI ST. THOllialli KITCHEN RENOVATION LITTLE ST.JAMES U.S. VIRGIN ISLANDS PROPOSED ELEVATIONS REVISI
EFTA00730711
TO REVAN r FEW RAFTERS OMENS 1O MAUI 1 PROPOSED ROOF PLAN SCALE: 114"= 2 PROPOSED ROOF FRAMING PLAN SCALE: 1/4"= l'-0' A1.02 A1.02 THE deJ NGH GROUP. PC ARCHITECTS & PLANNERS 2200 ESTATE STAABI ST. THO KITCHEN RENOVATION LITTLE ST.JAMES U.S. VIRGIN ISLANDS PROPOSED ROOF PLAN AND ROOF FRAM
EFTA00730713
NEW COSTDIGTORNAis ELEVATION C ECM F- yr . r-er ELEVATION B SCALE: 1W = V-0' 2 PROPOSED ELEVATIONS B AND C A1.03 SCALE: 114"= 11-0" THE deJ NGH GROUP. PC ARCHITECTS & PLANNERS 2260 ESTATE STMBI ST. TH011ialli KITCHEN RENOVATION LITTLE ST.JAMES U.S. VIRGIN ISLANDS PROPOSED ELEVATIONS REVISI
EFTA00730719
St. James Cut @:\ NORTH LOCATION OF DEVELOPMENT 3.2 C,=T BRASS B C f• AUXIU.Iltt CCM INTAKE 4 * * -S * Par CE ti( Ie THE deJ NGH GROUP. PC ARCHITECTS 8 PLANNERS 2200 ESTATE STAABI ST. THOMAS. USVI 00802 PH. 340.774.8036 KITCHEN RENOVATION LITTLE ST.JAMES U.S. VIRGIN ISLANDS
EFTA00730985
OSED POWER LAYOUT 2 PROPOSED LIGHTING LAYOUT 3 LEGEND AND NOTES 71.01 SCALE: 114"= I-0" etoi SCALE: 114==1'-0" ,E1.0I SCALE: 114"= I-0" THE deJ NGH GROUP. PC ARCHITECTS & PLANNERS 2200 ESTATE STAABI ST. THOMAS. USVI 00802 PH KITCHEN RENOVATION LITTLE ST.JAMES U.S. VIRGIN ISLANDS IGHTING,POWER
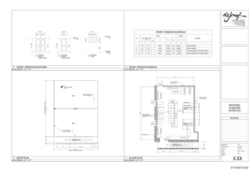
EFTA00731142
P0.I 1.110E r•r E7-Kr 3.6" DIEM' OF NEW ONSTRVC110.1 7l 2 ROOF PLAN 1 FLOOR PLAN 4 .XX SCALE: 1/4" =1'-0" AX.XX SCALE: VC =1'-0" THE deJ NGH GROUP. PC ARCHITECTS & PLANNERS 2200 ESTATE STAABI ST. THOMAS. UV! 00802 PH. 340.774.8036 PROPOSED PLANS AND SCHEDULES REVISIONS CRAM BY: 700E C
EFTA00614353
-SO 434 OFIELO -107 -108 -96 -89 48 44 40 44 0 EDGE -131 -129 -112 -103 .9B -SS .93 44 CD CORNER -131 -124 -112 -100 THE deJ NGH GROUP. PC ARCHITECTS S PLANNERS 2200 ESTATE STAABI ST. INDIANS.. PH. KITCHEN RENOVATION LITTLE ST.JAMES U.S. VIRGIN ISLANDS REVISIONS DRAWN BY:
EFTA00614355
@ _ ..r WOOD EXTERIfyli RAISED PANELS 1 PROPOSED FLOOR PLAN 1 DOOR AND WINDOW SCHEDULE 41.01 SCALE: VC= I-0" Kul SCALE: 1/4"= 1.4:r THE deJ NGH GROUP. PC ARCHITECTS S PLANNERS 2200 ESTATE STAABI ST. THOMAS. USVI 00602 PH. 340.774.8036 KITCHEN RENOVATION LITTLE ST.JAMES U.S. VIRGIN ISLANDS
EFTA00614361
NEW COSTDIGTORNAis ELEVATION C ECM F- yr . r-er ELEVATION B SCALE: 1W = V-0' 2 PROPOSED ELEVATIONS B AND C A1.03 SCALE: 114"= 11-0" THE deJ NGH GROUP. PC ARCHITECTS & PLANNERS 2200 ESTATE STMBI ST. THOMAS.. PH. KITCHEN RENOVATION LITTLE ST.JAMES U.S. VIRGIN ISLANDS PROPOSED ELEVATIONS REV
EFTA00614360
TO REVAN r FEW RAFTERS OMENS 1O MAUI 1 PROPOSED ROOF PLAN SCALE: 114"= 2 PROPOSED ROOF FRAMING PLAN SCALE: 1/4"= l'-0' A1.02 A1.02 THE deJ NGH GROUP. PC ARCHITECTS S PLANNERS 2200 ESTATE STAABI ST. THOMAS.. PH. KITCHEN RENOVATION LITTLE ST.JAMES U.S. VIRGIN ISLANDS PROPOSED ROOF PLAN AND
EFTA00614363
1 ELEVATION 8 ELEVATION /C V PREPARE AREA TO RECEIVE NEW STRUCTURAL SLAB AND SUPPORTS "c> O EXISTING KITCHEN N O ELEVATION A 0 THE deJ NGH GROUP. PC ARCHITECTS & PLANNERS 2200 ESTATE STAABI ST. THOMAS.. PH. KITCHEN RENOVATION LITTLE ST.JAMES U.S. VIRGIN ISLANDS DEMOLITION FLOOR PLAN
EFTA00614364
IOR FROM WATER DAMAGE ZS O SING 0 II II II 11 II .1. I --------------------- -- - - - - 3 1 Aim DEMOLITION ROOF PLAN SCALE: 114"= THE deJ NGH GROUP. PC ARCHITECTS & PLANNERS 2200 ESTATE STAABI ST. THOMAS.. PH. KITCHEN RENOVATION LITTLE ST.JAMES U.S. VIRGIN ISLANDS PARTIAL DEMOLITION ROO

Oliver Stone
PersonAmerican film director, screenwriter, and producer (born 1946)
NEW &IE
OrganizationOrganization referenced in documents
TYPEA
OrganizationOrganization referenced in documents
EYOSMG
OrganizationOrganization referenced in documents
GUTTEONO MN
OrganizationOrganization referenced in documents
EXISTNG
OrganizationOrganization referenced in documents
NEWACOMON
OrganizationOrganization referenced in documents