6
Total Mentions
6
Documents
0
Connected Entities
Organization referenced in documents
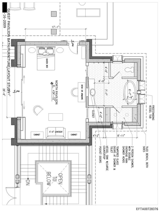
EFTA00728376
INK W/LARGE COUNTERTOP POCKET DOORS NORTH PAVILION AEL +54.-10" i4" N N N `OPEN/ fib, BLOW N -DN CI CH- GUEST PAVILIORI BATH/FURNITURE, LAYOUT STU13V1" -16-2009 2V-6" EFTA00728376
EFTA00794902
STREET I P Two 4-Story SRO Buildings in Prime East Village Delivered Mostly Vacant RENT ROLL BUILDING ROOM # to 101 MONTHLY RENT LEASE END LAYOUT Front $3,200 10/30/2018 2 Bdrm, 3 pc Bath, Kitchen, Living Room Rear $925 Single room, Siik Rear 102 $1,400 Vacant - Projected Single roo
EFTA00794893
XTENSION HVAC DUCT LAYOUT 24 MEETING WITH AOR FOR MECHANICAL DESIGN AND LAYOUT DUCT SIZE APPROVAL 25 LAYOUT ONSITE AND DRAFTING AOR APPROVAL OF LAYOUT 26 SUBMIT DUCTWORK SHOP DRAWINGS FOR RECORD 27 APPROVED SHOP DRAWINGS 28 DUCT FABRICATION AOR APPROVAL OF LAYOUT 29 INSTALL DUCTWORK 30 IN
EFTA00599570
To (49,04414-1 THIS AREAS HAS NOT BEEN REVIEWED IN DETAIL YET p SI Ede.) Ve,sirxminet_. ft I 607 - LUST. CA.AFf ANY COMMENTS ON THIS LAYOUT? F- O 10 I 7...o •••• "••• •• WE CAN COORDINATE THIS AREA TO MAKE THE ROAD WORK \I Rai Ptl I F Mohn-> Clew I-44 \A. ••••=. 0 fvtio u0.4%
EFTA00599818
e " ti "a 7" e —t: re: iitow r • ••• -•• zj Cr, LL111111J ot Im. m ..1 12 ADD: TIPS PROW' roof is RID AT 9/12./ PITCH VEWPY AT LAYOUT I/1 FELD SASH DOWED WOW MILS EEIOND 'ECHE ROW ENT/FANS LOCATE AS ICH AS FOSS ON BACK ROOFS 11 12 12 12 11 OU sot MAIN LEVEL P102310 cm
EFTA02708170
RARY/OFFICE PLAN MODIFICATION "B" DESIGN SUMMARY: THIS DESIGN OPTION HAS THE PROPOSED ADDITION ALIGNED WITH THE GREAT ROOM BUILDING . WITH THIS LAYOUT, ACCESS TO THE RESTROOM ALONG THE FRONT IN- CLUDES (2) TWO SMALL SET OF STAIRS. r - fe.CONTIC..141? FAXARIG AIWA Ilan ?Rw PARRS DUITOAT STALX711
No connected entities